Yıldırım Kulede FULL Yapılı 3 Bölüm, 120m2 Orman Manzaralı OFİS

Türkiye Ankara / Çankaya / Balgat / Cevizlidere Mah.

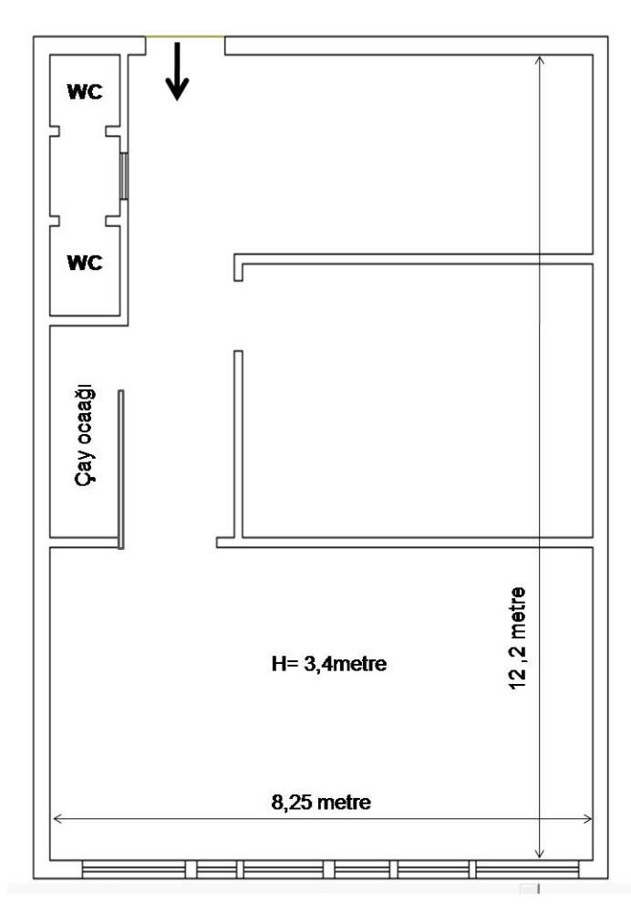
Kiralık Ofis İş Yeri 82,000 TL 120 m² / (Net) 100 m² Oda / Bölme: 3

Ofis Özellikleri: 
*-* 3 bölüm, 100 m2 net kullanım alanlı, 120 brüt
*-* Yükseklik: 3.40 metre
*-* 30 katlı İş merkezinde 4.katta
*-* Ön cephe
*-* Önü açık manzaralı, 
*-* Orman ve Konya yolu manzaralı
*-* Merkezi ısıtma sistemi, fan coil ısıtma sistemi 
*-* Çift Wc + Lavabo
*-* İçecek servis bankosu
 
İş Merkezi Özellikleri:
*-* Bütün markaların buluştuğu iş merkezinde
*-* Toplantı salonları ve sergi katı konsepti
*-* 5 adet asansör
*-* Katlara kartlı çıkış
*-* Açık otoparklı
*-* Ofise tahsisli 2 araçlık kapalı otopark yeri
*-* Vale hizmeti
*-* Resepsiyon hizmeti
*-* 7/24 Güvenlik personeli
 
Lokasyon Özellikleri:
*-* Konya Yoluna (Mevlana Bulvarı) cepheli
*-* Taurus Avm çok yakın
*-* ODTÜ Ormanları karşısı
*-* Toplu ulaşım güzergahında
 
Not: Firmamız Yer Gösterme Belgesi imzalatmak suretiyle hizmet vermektedir.



Bu ilan Emlak Asistanım CRM Programı tarafından otomatik entegre edilmiştir.

Ana Bilgi

Oda / Bölme3
Yapının ŞekliApartman Dairesi
Yapının DurumuIkinci El
Kullanım DurumuBoş
Bulunduğu Kat4
IsıtmaMerkezi Sistem (Isı payı Ölçer)
Yakıt TipiDoğalgaz
İnşa Yılı2015
Aidat0 TL
Tapu Ada29370
Tapu - Parsel1

İç Özellikler

Klima

Konum

Cadde üzerinde
Doğa Manzaralı
Toplu Ulaşıma Yakın
Minibüs Caddesine Yakin

Bina

Asansör
Güvenlik
Su deposu

Türkiye Ankara / Çankaya / Balgat / Cevizlidere Mah.

Yıldırım Kulede FULL Yapılı 3 Bölüm, 120m2 Orman Manzaralı OFİS / Yorumlar

EPA AKARE GAYRİMENKUL
Hoşdere Cad. No:179/4
Çankaya / Ayrancı
Ankara
90 312-4427600

İlanın Yayınlandığı Siteler

EPA EMLAK PAZARLAMA A.Ş. Kiralık İş Yeri Ofis Yıldırım Kulede FULL Yapılı 3 Bölüm, 120m2 Orman Manzaralı OFİS Ankara Çankaya Balgat Cevizlidere Mah. 82,000 TL EPA EMLAK PAZARLAMA A.Ş.,,yildirim,kulede,full,yapili,3,bolum,120m2,orman,manzarali,ofis,ankara,cankaya,balgat,cevizlidere,mah,is,yeri,ofis,kiralik, EPA EMLAK PAZARLAMA A.Ş. Yıldırım Kulede FULL Yapılı 3 Bölüm, 120m2 Orman Manzaralı OFİS Ankara Çankaya Balgat Cevizlidere Mah. İş Yeri Ofis Kiralık